Leased

304/2 Archibald Street, Box Hill

Under Application (Deposit Taken)

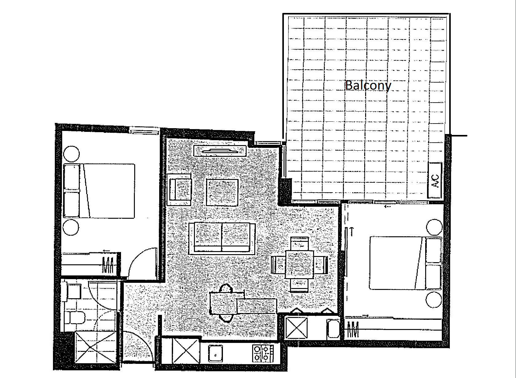
2 1 1

North Facing & Large Balcony & Box Hill Central

Situated in a first class location, enjoy walking to Box Hill Central, Box Hill Hospital, Box Hill Institute and TAFE, Box Hill Gardens, trains, trams and buses.
Fitted with a modern interior throughout, this near new apartment features 2 bedrooms with built in robes, 1 bathroom, a spacious, open plan kitchen, dining and lounge room leading to a large, north facing balcony. Further features include 1 secure underground carpark, separate laundry.


"Photos are for illustration purpose only.
"Please register/book for inspections at any of our properties. "
*PHOTO ID REQUIRED AT ALL INSPECTIONS.
*PLEASE NOTE: Open for Inspection Times and Property Availability is subject to change or contact/cancellation without notice.

Details

Available Leased
Address 304/2 Archibald Street, Box Hill
Price Under Application (Deposit Taken)
Property Type Rental
Property ID 10285
Category Apartment

Location

Share

Jason Cai photo

Jason Cai

0422 085 081

Important Information

Bond amount: $2,520