Sold

2/180-181 Nepean Highway, Seaford

SOLD for $642,000

2 1 1

A Lifestyle Defined by Sand, Sea & Serenity

Closing Date Sale Tuesday 23rd September 2025 at 6pm (unless sold prior)


Positioned in one of Seaford's most coveted beachside pockets, this beautifully presented townhouse delivers the perfect harmony of coastal charm, modern comfort and effortless convenience. Just footsteps from the pristine sands of Port Phillip Bay and moments to the tranquil beauty of Kananook Creek, it invites you to embrace a lifestyle that is both serene and sophisticated.

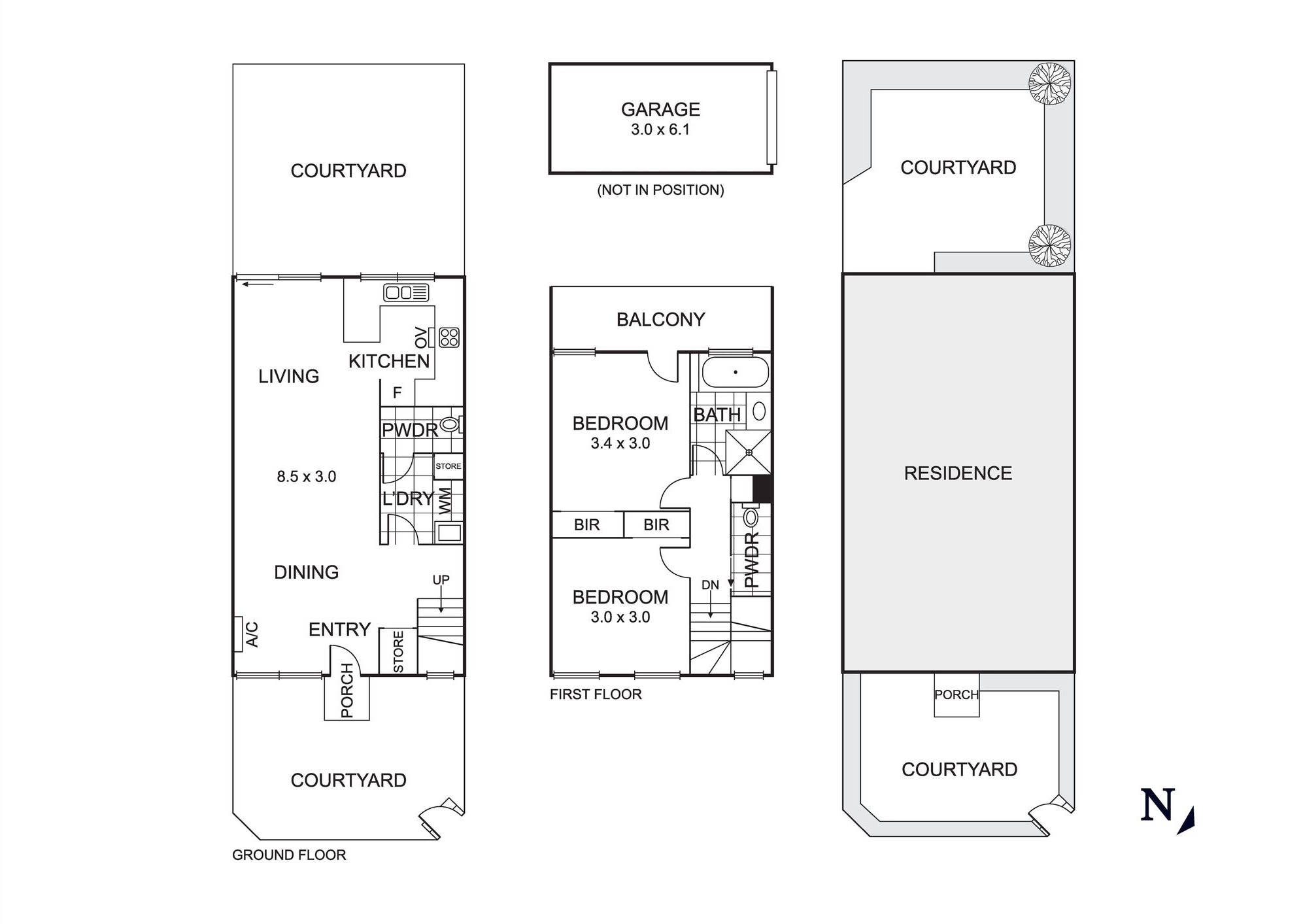
Set within a boutique complex, the residence unfolds across two light-filled levels, designed to capture natural warmth and the soft sea breeze. On entry, the ground floor opens to a spacious open-plan living and dining area, where timber floors and a calming neutral palette create an inviting atmosphere that immediately feels like home. Generous in scale yet intimate in feel, this central hub flows seamlessly to a private courtyard that acts as a natural extension of the living space, inviting alfresco dining, weekend entertaining or simply a quiet morning coffee enjoyed in the salty air. The adjoining kitchen is both stylish and highly functional, equipped with quality appliances, ample storage and generous bench space to meet the needs of both the avid home cook and the relaxed entertainer.

Upstairs, the accommodation provides peace and privacy, with two spacious bedrooms each fitted with built-in robes. The master bedroom enhances the experience with direct access to its own balcony, providing a tranquil setting to watch the sunset or to begin the day with views that capture the essence of seaside living. Servicing both bedrooms is a well-appointed central bathroom featuring a bath, shower and quality finishes, while a convenient ground-floor powder room adds further practicality for guests and day-to-day living.

The home's design goes beyond the interior, offering outdoor versatility with a second courtyard, ensuring there is always a private corner to retreat to or entertain in. A secure lock-up garage provides peace of mind, while additional features such as split-system heating and cooling ensure year-round comfort.

The location is one of this property's greatest luxuries. Renowned for its unspoiled coastline and strong sense of community, Seaford has long been celebrated as one of the Peninsula's most desirable lifestyle destinations. From morning walks along golden sands, refreshing ocean swims, and evening strolls through foreshore reserves, to nearby cafés and eateries serving fresh local fare, every day brings an opportunity to experience the unique rhythm of beachside living. Nature lovers will appreciate the close proximity to the Wetlands, a nationally recognised ecological reserve that offers peaceful walking tracks and abundant birdlife, while those seeking connectivity will find Seaford Station and the Nepean Highway just minutes away, ensuring effortless travel into Melbourne's CBD or further down the Mornington Peninsula to explore its renowned wineries, golf courses and coastal villages.

Contact Dean Bozunovic or Massimo Cassani today to discuss securing your very own slice of Paradise. We look forward to seeing you at our open for inspection.

Features

Courtyard Outdoor entertainment area Secure Parking

Details

Address 2/180-181 Nepean Highway, Seaford
Price SOLD for $642,000
Property Type Residential
Property ID 10402
Category Unit

Location

Share

Dean Bozunovic photo

Dean Bozunovic

0488 123 655

Massimo Cassani photo

Massimo Cassani

0432819566