Auction

23 Green Street, Windsor

$1,650,000 - $1,750,000

3 1 1 290 m2

Auction details

Auction

Saturday 25 October, 11:00 AM

Inspect

Inspections

Wednesday 8 October 12:00 PM - 12:30 PM

Saturday 11 October 12:00 PM - 12:30 PM

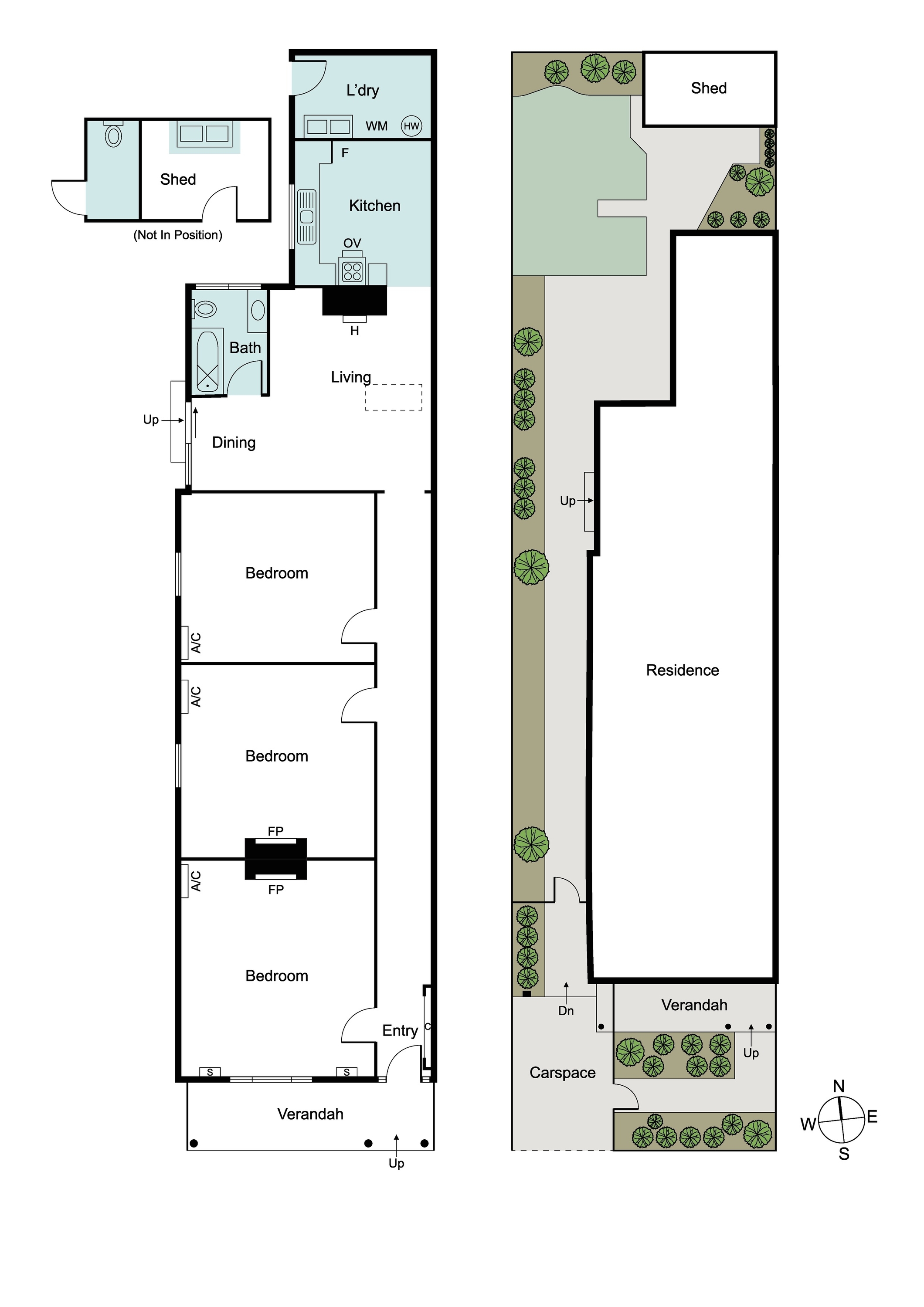
North Facing Freestanding Victorian on 290SQM of Land (approx)


Nestled in one of Melbourne’s most vibrant inner-city suburbs, this beautiful block-fronted Victorian delivers a sundrenched north-facing block. Potential for a renovation/extension to capitalise on the exceptional allotment of 290sqm approx (STCA). Perfectly positioned steps to amenities, it offers an exciting lifestyle suited to busy buyers of any demographic.

. Off Street car parking.
· Wide street frontage of 8.5m (approx).
· Classic long hallway with a beautiful feature arch. It stretches past the three substantial bedrooms – two with original fireplaces.
· Set to the rear, the open plan living and dining zone is flooded with natural light.
· A bright kitchen and sparkling bathroom are also offered along with a generous external laundry.
· A true bonus is the private north-facing alfresco patio with room to entertain in the fresh air as well as plenty of greenery and a neat lawn.
· Comforts include multiple split systems, while the practicality of ample internal storage and a garden shed plus a coveted off-street parking space round off the home.

Brilliantly located, this delightful home is within a short walk of Windsor's trendy restaurant precinct, vibrant Chapel Street, Windsor station, trams, Prahran Market and Albert Park Lake and within ten minutes of the CBD, Fitzroy Street's nightlife and St Kilda beach.

Details

Address 23 Green Street, Windsor
Price $1,650,000 - $1,750,000
Property Type Residential
Property ID 10893
Category House
Land Area 290 m2

Location

Share

Important Information

Property Documents