Leased

43A Ormond Esplanade, Elwood

$1,295 per week

4 2 2

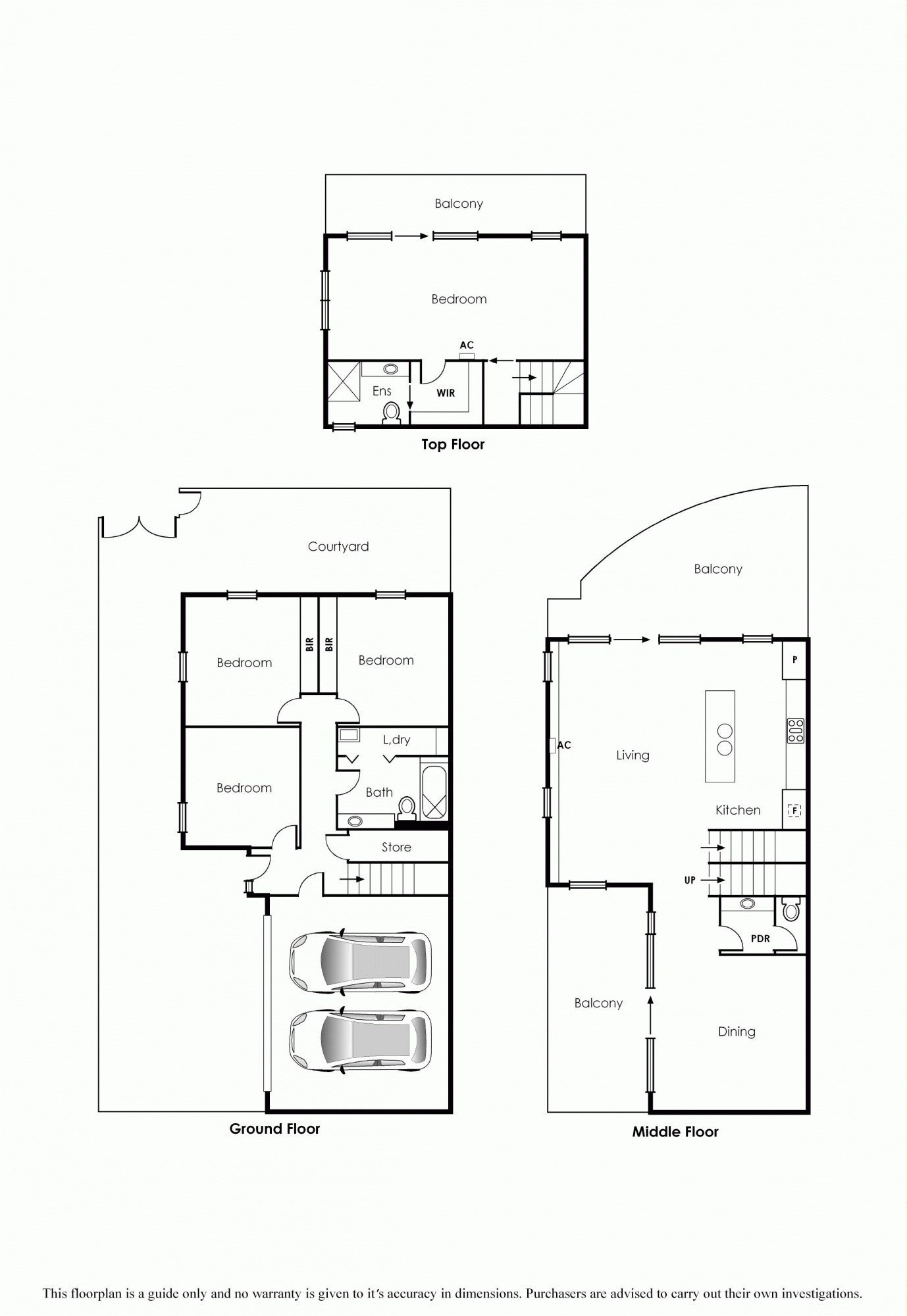
Tri-level temptation with a breath-taking view


Hold on to your breath because the bay views from this 3/4-bedroom, 2.5-bathroom home will steal it away. With the beach as your playground, 3 generous levels to spread out in & 3 balconies and a courtyard to enjoy the sea air, this is much more than a home, it's a lifestyle par excellence opposite the sun & sand. The feeling of space is obvious once step into the open living, dining & modern kitchen with Ilve upright oven, dishwasher and ample storage makes for easy entertaining & relaxation. The whole top floor showcases the master suite to surpass your dreams with spectacular views, walk thru robe to the en-suite bathroom. Furthermore you have laundry, split system heating/air conditioning throughout, polished floorboards, double lock up garage with ample storage, remote gates & a whole lot more. **NOTE THERE IS CURRENTLY RENOVATIONS BEING UNDERTAKEN NEXT DOOR AND THE RENT HAS BEEN ADJUSTED ACCORDINGLY TO COMPENSATE FOR ANY INCONVENIENCE**

AVAILABLE: NOW

Arranging an inspection is easy!
To book a time, head to the listing on realestate.com.au and simply click on the book an inspection button online to register for your chosen inspection time, Saturday inspections are available by appointment so please get in touch with us to book in a weekend inspection if you are unavailable during the week. If viewing from another website, please click the email agent button and we will contact you to book your inspection. By registering, you will be informed of any updates, changes or cancellations for your inspection. Registering for the inspection is mandatory and you MUST confirm your appointment 2 hours before otherwise the inspection may be cancelled. PHOTO ID MUST BE PROVIDED BEFORE ENTRY AT THE PROPERTY. **For guaranteed access, please arrive at the inspection at the allocated start time, any later and access is not guaranteed.***
Applications can be made via www.2apply.com.au and lease terms are 12 months unless otherwise specified.

Details

Available Leased
Address 43A Ormond Esplanade, Elwood
Price $1,295 per week
Property Type Rental
Property ID 10894
Category Townhouse

Location

Share

Dragan Mrkela photo

Dragan Mrkela

0418 123 128

Important Information

Bond amount: $6,475