Leased

57 Garfield Street, Richmond

$850 per Week

2 1

Bright, Beautiful & Perfectly Positioned

***TO BOOK A TIME TO INSPECT, SIMPLY CLICK ON BOOK AN INSPECTION TIME OR EMAIL AGENT TO BE NOTIFIED OF INSPECTION TIMES. BY REGISTERING, YOU WILL BE INSTANTLY INFORMED OF ANY UPDATES, CHANGES OR CANCELLATIONS FOR YOUR APPOINTMENT. IF YOU DO NOT REGISTER FOR AN INSPECTION, ACCESS MAY NOT BE PROVIDED***

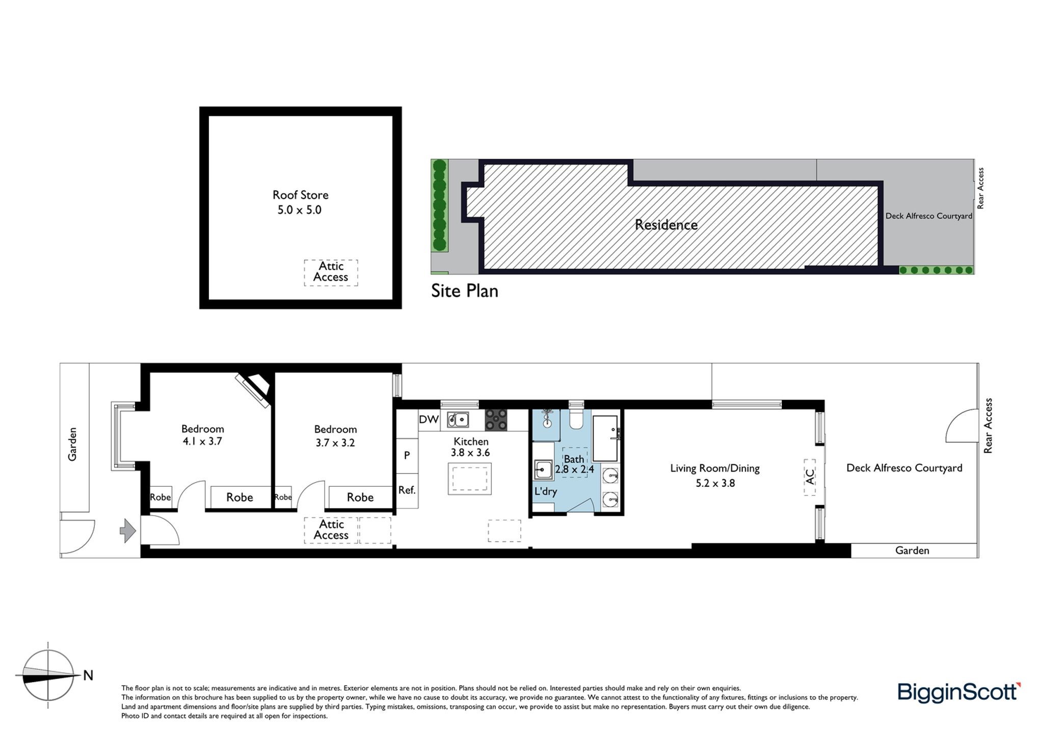
Bathing in beautiful natural light thanks to its northern aspect, this exquisitely renovated residence is an urban oasis of exemplary style and class. Conveniently located for transport, everyday amenities and lifestyle, it is the epitome of a turnkey opportunity that is ready to be enjoyed.

- Tucked in a row of classic homes, the traditional façade opens to soaring ceilings with a long hallway giving access to two superbly proportioned bedrooms.
- In the modern extension, the open plan entertaining zone connects with a stunning kitchen equipped with AEG appliances and stone benchtops, all crowned by a fabulous skylight.
- An island bench in the kitchen is perfect for the first drink before heading out to the sundrenched alfresco dining deck complete with pedestrian access to a rear laneway.
- A wrought iron fireplace and box bay window with plantation shutters are the highlights in the master bedroom, while generous designer robes are offered in both tranquil bedrooms.
- Echoing the aesthetic of the kitchen, the bathroom is equally glorious and conceals a practical space for laundry appliances.
- The comfort of split system heating/cooling are also offered.

An easy walk to North Richmond Station and the trams along Victoria Street, close to mouthwatering dining options and eclectic shopping, this brilliant home is also near the Epworth Hospital and just 2km from the Paris-End of the CBD.

*** For guaranteed access, please arrive at the allotted inspection start time ***

APPLYING - Apply online via 2Apply. The application will be emailed to you after you have inspected the property.
LEASE TERMS - 12 MONTHS unless otherwise specified.
PARKING PERMITS - Whilst parking permits are available for most properties, please confirm with the local council before applying for the property.

PHOTO ID MUST BE PROVIDED UPON ENTRY AT THE PROPERTY

BIGGIN SCOTT RICHMOND - NO 1 FOR PROPERTY MANAGEMENT

Details

Available Leased
Address 57 Garfield Street, Richmond
Price $850 per Week
Property Type Rental
Property ID 11035
Category House

Location

Share

Liam Mulligan photo

Liam Mulligan

03 9426 4064

Lucy Parmenter photo

Lucy Parmenter

03 9426 4060

Important Information

Bond amount: $3,693