New

12 Second Street, Hepburn Springs

$585,000

2 1 1 2,687 m2

Charming Garden Cottage on Half an Acre – Renovator’s Opportunity


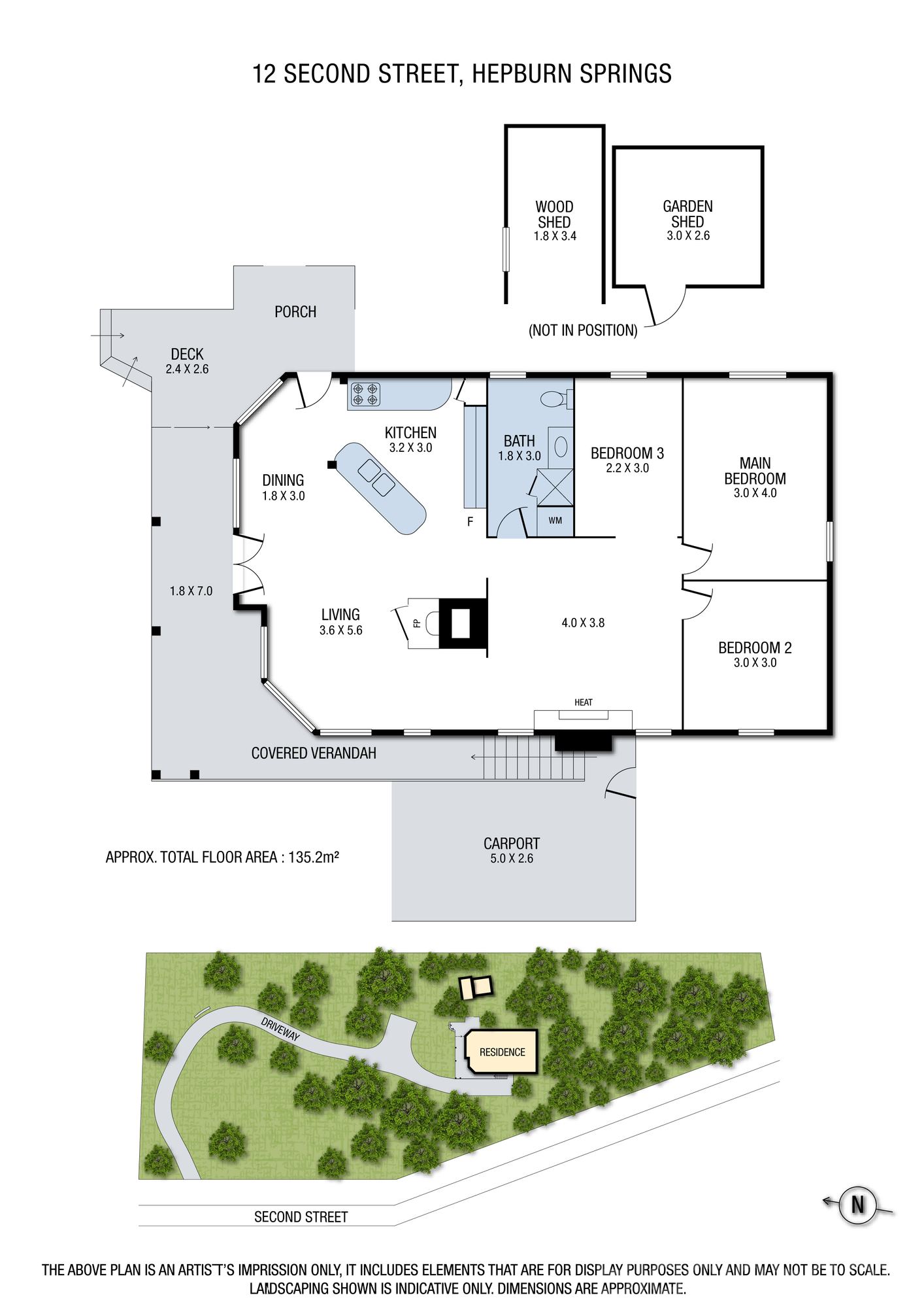
Hidden away in a quiet residential area of Hepburn Springs, this cherished family home has been lovingly held for over 25 years. Set on an expansive 2,687 sq.m approx (over half an acre), the property offers a tranquil lifestyle with a distinctly country atmosphere, while remaining just a short stroll from local shops, cafes, wellness centres and nearby bushwalking tracks. While the home needs both structural repairs and cosmetic refreshing, it offers a unique opportunity for buyers with vision to reimagine and restore it to its full potential.

The character-filled three-bedroom cottage captures the charm of rural living with a warm, inviting kitchen and living area that flows into a north-facing enclosed sunroom. A cosy central sitting room features a gas log fire, while additional heating is provided by a gas space heater, ensuring comfort throughout the cooler seasons. The third bedroom, slightly smaller in size, is ideal as a home office, study or reading room. A central bathroom has shower, toilet and vanity. Outside there is a sizable garden shed and undercover parking.

The home is surrounded by an established, meandering garden and native bushland that attracts an abundance of birdlife and native animals including kangaroos and echidnas, offering picturesque views from every window.

Fully connected to electricity, natural gas, sewerage and town water, the property is just five minutes from bustling Daylesford, yet feels a world away. Whether you're seeking a creative project, a weekend retreat, or a private country escape, this property offers a rare chance to secure a slice of Hepburn Springs in a serene and well-connected location.

Details

Address 12 Second Street, Hepburn Springs
Price $585,000
Property Type Residential
Property ID 11067
Category House
Land Area 2,687 m2

Location

Share

Important Information

Property Documents