Auction

9 Hartington Street, Elsternwick

$2,300,000 - $2,530,000

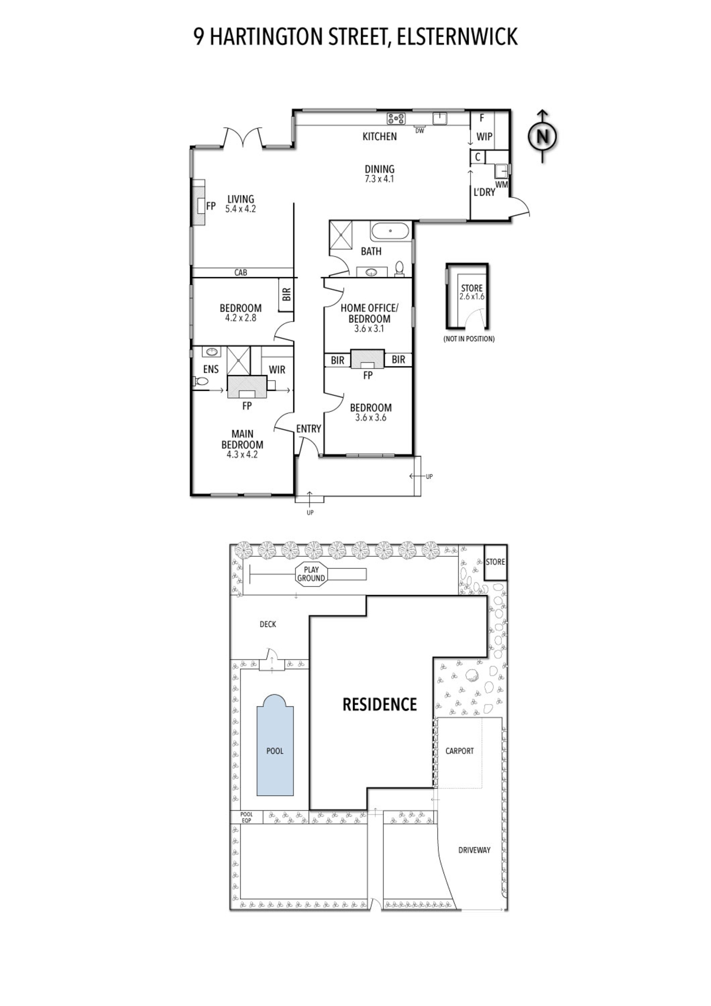
3 2 2 578 m2

Auction details

Auction

Sunday 30 November, 12:00 PM

Inspect

Inspections

Sunday 9 November 11:00 AM - 11:30 AM

Thursday 13 November 2:45 PM - 3:15 PM

Saturday 15 November 4:00 PM - 4:30 PM

Sunday 16 November 2:30 PM - 3:00 PM

Thursday 20 November 12:00 PM - 12:30 PM

Victorian Elegance Meets Contemporary Luxury.


Victorian Elegance Meets Contemporary Luxury.
Step into a rare fusion of heritage charm and modern sophistication. This impeccably reimagined 3 to 4 bedroom residence offers a lifestyle of effortless refinement.
Set on a prime north-facing corner allotment of approx. 578m², this coveted Elsternwick address places you within a short stroll of vibrant cafés, boutique shops, transport, parks, and leading schools—everything at your fingertips.
Whether hosting poolside gatherings or enjoying quiet evenings by the fireplace, this home adapts to every season and mood.
• Master suite with luxury private ensuite & walk-in robe
• 3 additional bedrooms - 1 ideal as a home office or guest retreat
• Striking open-plan kitchen with walk-in pantry, flowing to dining & living
• Elegant lounge/sitting room opening to alfresco entertaining
• Family bathroom & separate laundry, Heating/Cooling/Ceiling Fans
• Landscaped gardens, entertainer’s deck & solar-heated saltwater pool
• R/C off-street parking for two, Security entry
This is more than a home, it’s a benchmark of refined living. Buyers will be drawn to the seamless blend of period architecture and contemporary flow, the generous outdoor entertaining zones, and the unbeatable location. Perfect for families, professionals, or downsizers seeking timeless style with modern ease.

Details

Address 9 Hartington Street, Elsternwick
Price $2,300,000 - $2,530,000
Property Type Residential
Property ID 11104
Category House
Land Area 578 m2
Floor Area 156 m2

Location

Share

Important Information

Property Documents