New

405/84 Cutter Street, Richmond

Private Sale $750,000-$820,000

2 2 1

Inspect

Inspections

Wednesday 29 October 5:30 PM - 6:00 PM

Saturday 1 November 11:00 AM - 11:30 AM

A HAVEN YOU WILL LOVE COMING HOME TO!


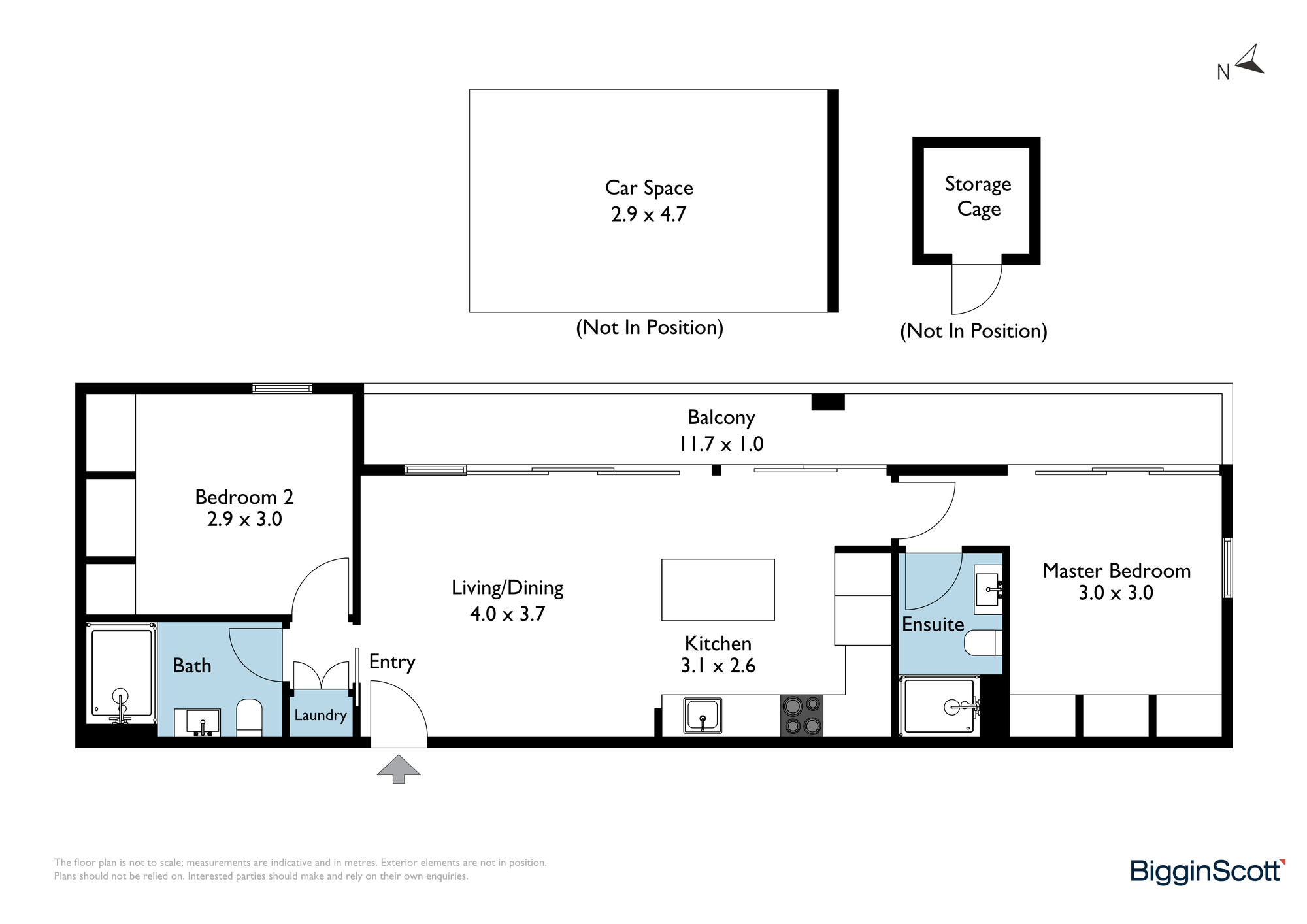
Designer style meets sheer convenience at this stunning sub-penthouse apartment, where high-end appointments, exquisite tones & textures and far-reaching views combine to create an inner-city sanctuary you will simply love coming home to.

- Nestled on the fourth floor of a striking group by MAA Architects, the sun-filled residence is both rent and move in ready.
- Enhanced by pale wide-board floors and crowned by chic concrete ceilings, the open plan living/dining zone is a fabulous space to share with friends; it spills outside to a broad entertainer’s balcony with views as far as the eye can see.
- A marble island anchors the first-class gourmet kitchen; a culinary setting that also features mixed-media cabinetry and prestige European appliances.
- Bespoke wardrobes can be found in both of the carpeted bedrooms.
- The main bedroom has the luxury of its own private subway-tiled ensuite while an equally stylish main bathroom is also offered.
- Kept comfortable thanks to ducted heating/cooling, electric blinds, this impressive lock & leave package also comes with the convenience of secure parking and a storage cage.
- Current rent $800 per week (no fixed term).

With Swan Street attractions and city-bound trams readily at hand, the home is within moments of Burnley train station, the open green spaces of Burnley Park and the tranquility of the Yarra River – all while enjoying brilliant proximity to the CBD.

Conditions of entry - IDENTIFICATION and contact number required, otherwise entry may be refused.

The information about this property has been supplied to us by the property owner, while we have no cause to doubt its accuracy, we provide no guarantee. We cannot attest to the functionality of any fixtures, fittings or inclusions to the property. Land and apartment dimensions and floor/site plans are supplied by third parties. Typing mistakes, omissions, transposing can occur, we provide to assist but make no representation. Buyers must carry out their own due diligence.

Details

Address 405/84 Cutter Street, Richmond
Price Private Sale $750,000-$820,000
Property Type Residential
Property ID 11118
Category Apartment

Location

Share