Sold

1/55 Stanley Street, Richmond

SOLD for $1,050,000

2 2 2

Auction details

Auction

Saturday 8 November, 1:00 PM

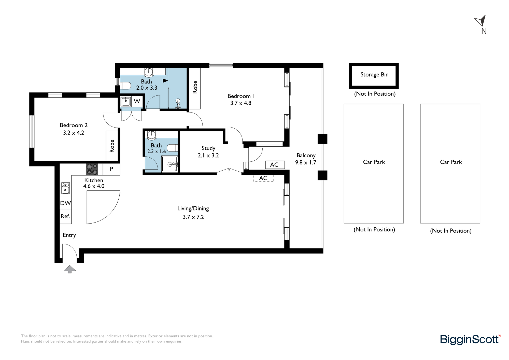
A HIDDEN GEM WITH SURPRISING SPACE & STYLE


Nestled just metres from Swan Street’s vibrant café and dining strip, this unexpectedly spacious ground floor townhouse-style apartment offers unbeatable inner-city convenience combined with generous proportions and contemporary comfort.

- Boutique block in the heart of Richmond, moments from Swan Street and Richmond Station
- Freshly painted interiors and brand-new carpets throughout
- Vast open-plan living and dining zone with granite-topped kitchen
- Expansive 10-metre approx. terrace ideal for outdoor entertaining
- Two oversized bedrooms plus a separate study
- Two well-appointed bathrooms and a European laundry
- Two secure basement car spaces with storage bin
- Additional council parking permits available

With its impressive size, unbeatable location, and easy modern living, this home is the perfect fit for those seeking space without compromise — right in the heart of Richmond’s lifestyle hub.

Conditions of entry - IDENTIFICATION and contact number required, otherwise entry may be refused.

The information about this property has been supplied to us by the property owner, while we have no cause to doubt its accuracy, we provide no guarantee. We cannot attest to the functionality of any fixtures, fittings or inclusions to the property. Land and apartment dimensions and floor/site plans are supplied by third parties. Typing mistakes, omissions, transposing can occur, we provide to assist but make no representation. Buyers must carry out their own due diligence.

Features

Study

Details

Address 1/55 Stanley Street, Richmond
Price SOLD for $1,050,000
Property Type Residential
Property ID 11120
Category Apartment

Location

Share

Allan Cove photo

Allan Cove

0411 528 615

Russell Cambridge photo

Russell Cambridge

0418 339 271