Auction

16/378 Glen Huntly Road, Elsternwick

$950,000 - $1,045,000

3 2 2

Auction details

Auction

Saturday 29 November, 1:30 PM

Inspect

Inspections

Thursday 20 November 3:15 PM - 3:45 PM

Saturday 22 November 1:00 PM - 1:30 PM

Sunday 23 November 1:15 PM - 1:45 PM

Thursday 27 November 1:15 PM - 1:45 PM

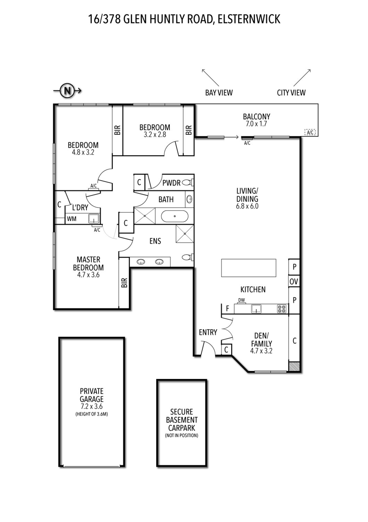
Spectacular Designer Penthouse in the Heart of Elsternwick. 174m² (approx) of Absolute Luxury Living


Experience house-like proportions in this stunning third-level penthouse apartment, recently transformed through extensive remodelling. Located in the Renown Apartments with secure intercom entry and lift access via Carre Street, this exceptional residence redefines modern apartment living.
Step inside and prepare to be impressed. The generosity of space here is immediately apparent – this isn’t just another apartment it’s a penthouse that lives like a house in the sky. The expansive gallery entrance sets the tone, leading you into light-filled interiors where every detail has been considered.

The heart of the home reveals itself in the open-plan living zone. Here, a gourmet kitchen commands attention with its sweeping stone countertops and premium European appliances – a space that invites both everyday family meals and sophisticated entertaining. The living and dining areas flow naturally from this culinary hub, extending onto an alfresco balcony where bay and city views provide a stunning backdrop to your morning coffee or evening drinks.

The family-sized kitchen is a chef’s dream, anchored by vast stone countertops that offer both beauty and practicality. Excellent storage keeps everything in its place, while premium European appliances ensure you’re equipped for any culinary adventure.

Three generously proportioned bedrooms provide flexible accommodation. The master is a true retreat, complete with a beautifully tiled ensuite and built-in robes. Meanwhile, a separate den or family room offers the perfect solution for those working from home or needing extra living space – the versatility here is impressive.

Every surface, every fitting speaks to quality. Engineered timber flooring flows throughout the living spaces, while plush carpets add warmth to the bedrooms. The central bathroom showcases designer finishes, and a guest powder room adds an extra layer of convenience. A separate laundry and storage box room ensure the practical side of life is well catered for, while heating and cooling keep you comfortable year-round.

Car lovers and hobbyists, take note: this property includes an enormous private lock-up garage – a rare find that’s ideal for collections, projects, or simply extra secure storage. Add to this a second undercover car space in the basement, and you have parking that’s as impressive as the apartment itself.

With delightful soft furnishings included and every detail already perfected, this penthouse is genuinely turn-key ready. All you need to bring is yourself.

Details

Address 16/378 Glen Huntly Road, Elsternwick
Price $950,000 - $1,045,000
Property Type Residential
Property ID 11331
Category Apartment
Floor Area 174 m2

Location

Share

Important Information

Property Documents