Leased

4/1 Ellesmere Road, Windsor

$500 Per Week

1 1 1

Stylish, Light-Filled Living in the Heart of Windsor


**TO BOOK A TIME TO INSPECT, SIMPLY CLICK ON BOOK AN INSPECTION TIME OR EMAIL AGENT TO BE NOTIFIED OF INSPECTION TIMES. BY REGISTERING, YOU WILL BE INSTANTLY INFORMED OF ANY UPDATES, CHANGES OR CANCELLATIONS FOR YOUR APPOINTMENT. IF YOU DO NOT REGISTER FOR AN INSPECTION, ACCESS MAY NOT BE PROVIDED**

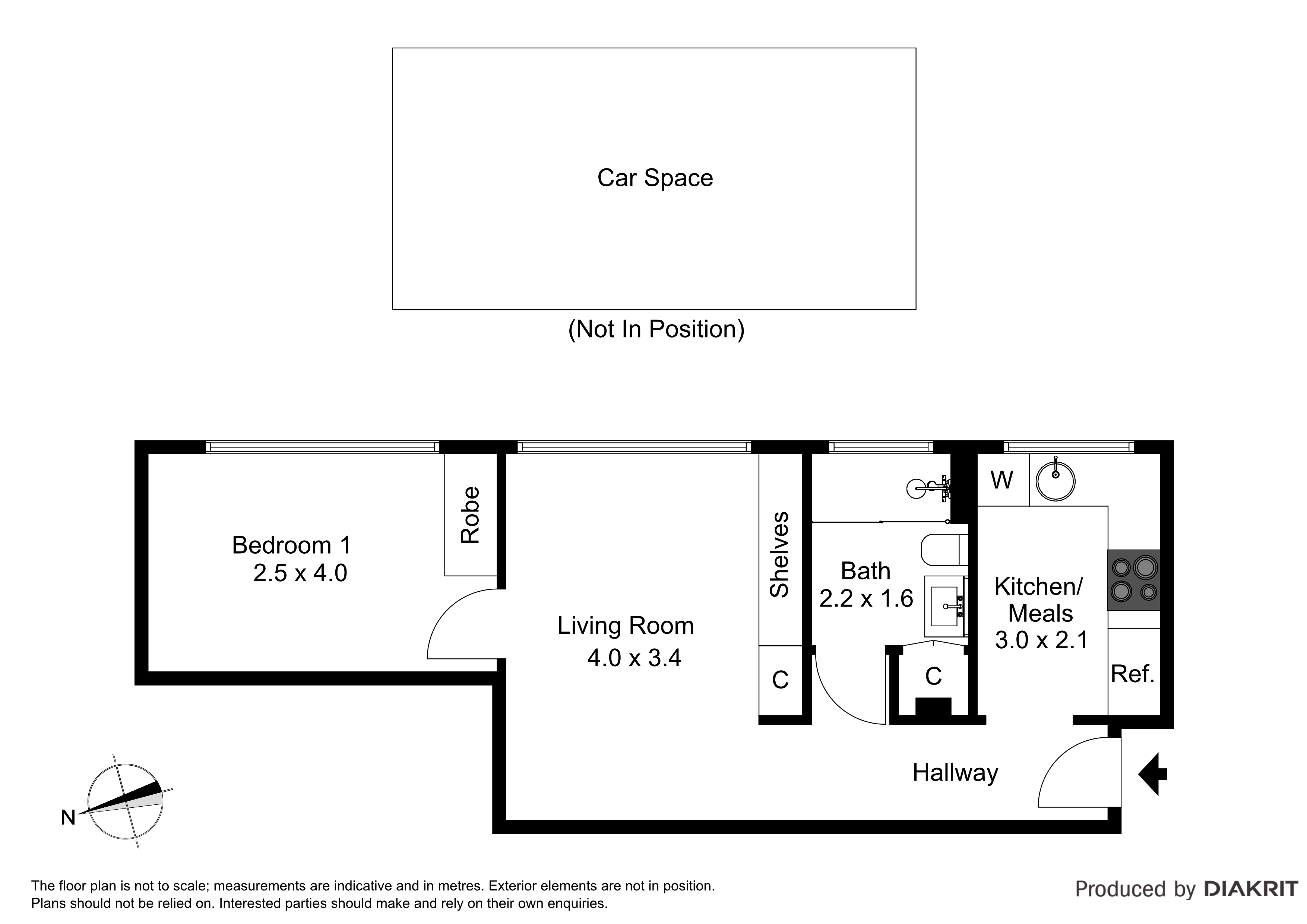
Nestled in the heart of Windsor in a boutique block of only 12, just a short stroll from transport, Victoria Gardens and Chapel Street, this ground floor low maintenance home offers:

- Security entrance
- Bright living room with built-in shelves
- Separate renovated Tasmanian Oak kitchen with euro laundry
- Spacious bedroom with built-in robes
- Sleek central bathroom
- Parquetry flooring
- Off street parking on title

Details

Available Friday 19 December 2025
Address 4/1 Ellesmere Road, Windsor
Price $500 Per Week
Property Type Rental
Property ID 11709
Category Unit

Location

Share

Tom Koller photo

Tom Koller

0487 888 100

Important Information

Bond amount: $2,173