Sold

19 St Georges Road, Elsternwick

SOLD for $2,260,000

3 2 2

Architectural Masterstroke in Elsternwick's Inner Circle


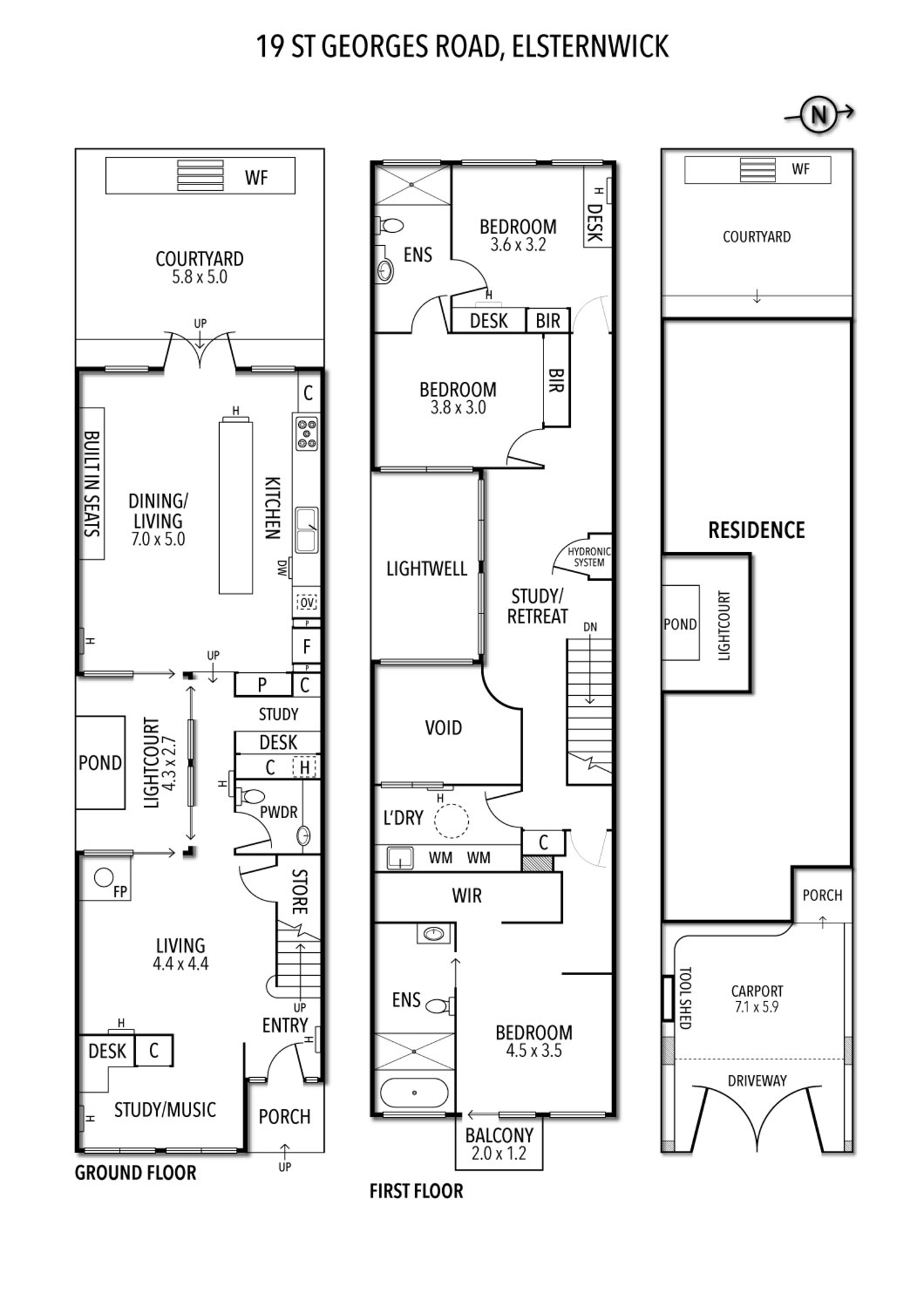
This bespoke town residence set in Elsternwick's most highly regarded street, is where artistic design meets contemporary living. The residence presents three exceptional bedrooms, including a master suite with ensuite, walk-in dressing room and private balcony. Bedrooms two and three feature built-in desks, storage and 'Bill and Ben' ensuite access.

Light defines the interior experience through carefully planned living zones and a striking internal garden lightwell complete with water feature. The kitchen accommodates dinner parties, entertaining, and daily life with quality appliances, vast amounts of custom joinery and an integrated meals area. The main living room complete with real open fireplace and dramatic ceiling heights promises year round versatility. Two dedicated home offices, plus a multipurpose/creative area provide workspace flexibility, while the jaw dropping guest powder room ensures seamless hosting.

Climate control operates through hydronic heating and air conditioning throughout. The private landscaped courtyard offers low-maintenance outdoor living, complemented by secure parking for two vehicles with comprehensive built-in storage solutions.

The location delivers exceptional convenience. Elsternwick's village amenities—artisan cafes, transport connections, established schools, and parklands sit within easy walking distance. This combination of architectural brilliance, modern functionality and premium positioning represents an unbeatable lifestyle and future investment in Melbourne's tightly held residential geography.

A rare offering where design sensibility meets lifestyle sophistication.

Details

Address 19 St Georges Road, Elsternwick
Price SOLD for $2,260,000
Property Type Residential
Property ID 10408
Category House

Location

Share

Bill Stavrakis photo

Bill Stavrakis

0418327622

Farida Amiry photo

Farida Amiry

0404 606 339