New

67 Albert Street, Port Melbourne

$1,450,000 - $1,550,000

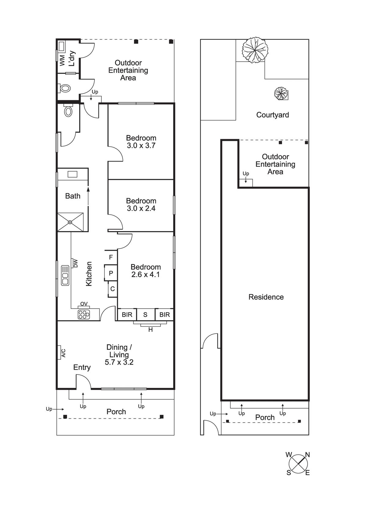
3 1 183 m2

Inspect

Inspections

Thursday 9 October 12:45 PM - 1:15 PM

Saturday 11 October 12:45 PM - 1:15 PM

Expressions of Interest Closing Monday 27th of October

Freestanding Family Home with Rare Backyard & Future Potential

Set on a generous 183 sqm allotment, this charming three bedroom residence offers comfort today and incredible scope for tomorrow in one of Port Melbourne's most tightly held pockets.

Enjoy the lifestyle advantages of a freestanding home with a generous backyard, almost impossible to find in this location, just steps from Garden City Reserve, the 109 tram and Bay Street, with Port Melbourne Primary and Port Melbourne Secondary close by.

Inside, the home features three well-proportioned bedrooms, a versatile floorplan and a neat modern kitchen, ready to enjoy or lease immediately. Adding exceptional value, approved plans and permits by renowned South Melbourne architects McMahon & Nerlich open the door to creating a striking contemporary residence. Free from the restrictions of a heritage overlay, the block offers the rare freedom to design boldly and maximise its full potential.

Move straight in, rent it out with ease, or seize the opportunity to build something truly outstanding, this is a property that delivers lifestyle, location and limitless possibilities.

Features

Courtyard Outdoor entertainment area Study

Details

Address 67 Albert Street, Port Melbourne
Price $1,450,000 - $1,550,000
Property Type Residential
Property ID 10822
Category House
Land Area 183 m2

Location

Share

Important Information

Property Documents