Auction

1-6/5 Clarke Street, Elwood

$1,900,000-$2,000,000

6 6 6

Auction details

Auction

Friday 14 November, 12:00 PM

Inspect

Inspections

Thursday 30 October 4:00 PM - 4:30 PM

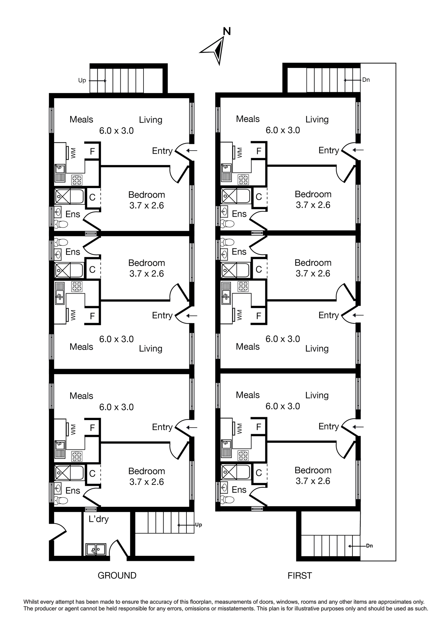
An Affordable Block of 6 Apartments with Exciting Future Potential, In A Brilliant Elwood Location


A clever investment, family or development opportunity (STCA) the property offers:
- Six 1 bedroom apartments on land 450SM approx. with no overlay
- All are on separate titles and there are 6 titled carparks
- 4 have been updated and 2 have not
- Rent at present is $107,000 PA approx. with upside

Details

Address 1-6/5 Clarke Street, Elwood
Price $1,900,000-$2,000,000
Property Type Residential
Property ID 11185
Category Block Of Units

Location

Share

Important Information

Property Documents